
Create Your First Project
Start adding your projects to your portfolio. Click on "Manage Projects" to get started
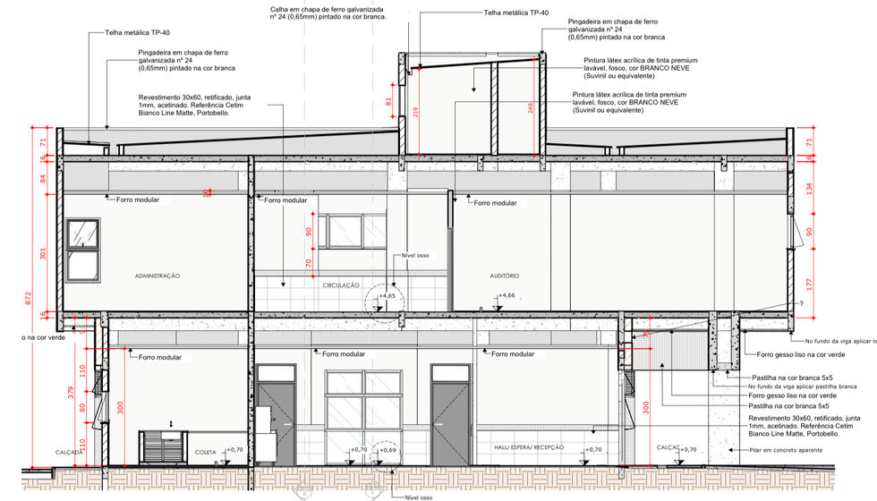
Unidade de Saúde Pinhais
Cliente
Prefeitura de Pinhais
Área
962m²
Data
2024-2025
Localização
Pinhais
Fase da Obra
Revestimentos e Acabamentos
Porcentagem
55%
Construção de Undiade de Saúde Esplanada em Pinhais, o edifício terá dois andares e contará com salas de esterilização, expurgo, escovódromo, odontologia, ampliação do número de consultórios, farmácia com atendimento do profissional farmacêutico e dispensação de medicamentos controlados, almoxarifado, triagem e acolhimento, sala de vacina, banheiros femininos e masculinos e com acessibilidade, administração, auditório para reuniões da equipe e grupos, refeitório para os servidores, recepção e salas de espera com mais espaço para os usuários. Além de diversos sistemas sustentáveis como reuso de água pluvial e placas fotovoltáicas.
















.png)

